Стильный дом со вторым светом площадью 253 м2. Дизайн-проект и фото готового дома

Сегодня расскажем вам про один из наших проектов- стильный двухэтажный дом из бруса с большим количеством окон и вторым светом.

Если вам интересно увидеть больше проектов, подписывайтесь на наш Телеграм

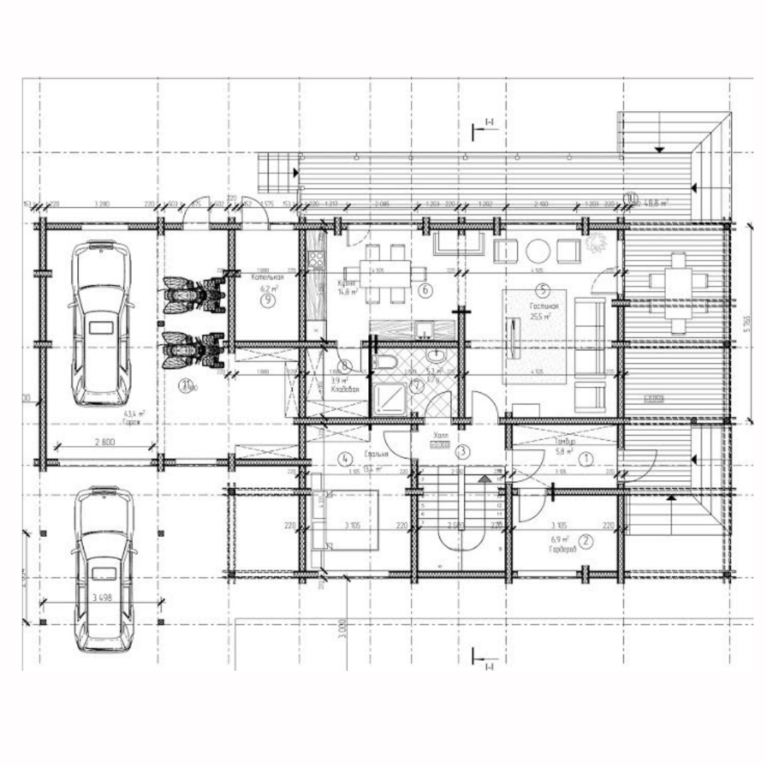
Индивидуальный проект, который разрабатывался на основе пожеланий заказчика. Это одноэтажный дом с мансардой общей площадью - 252,6 кв.м.

Проект дома АДД-АР-253-На Василях

Передняя часть дома АДД-АР-253-На Василях

Проект дома АДД-АР-253-На Василях

Вид со стороны гаража и мастерской

Дом построен по финской технологии двойного бруса из бруса камерной сушки.

Подробнее об этой технологии мы писали здесь:

Нужен современный и экологичный дом? Выбирайте технологию двойного брусаАльпийский дом2 апреляПланировку дома смотрите в галерее

Это современный и экологичный дом с продуманной планировкой который отлично подойдет для семьи любого размера.

На первом этаже расположены:

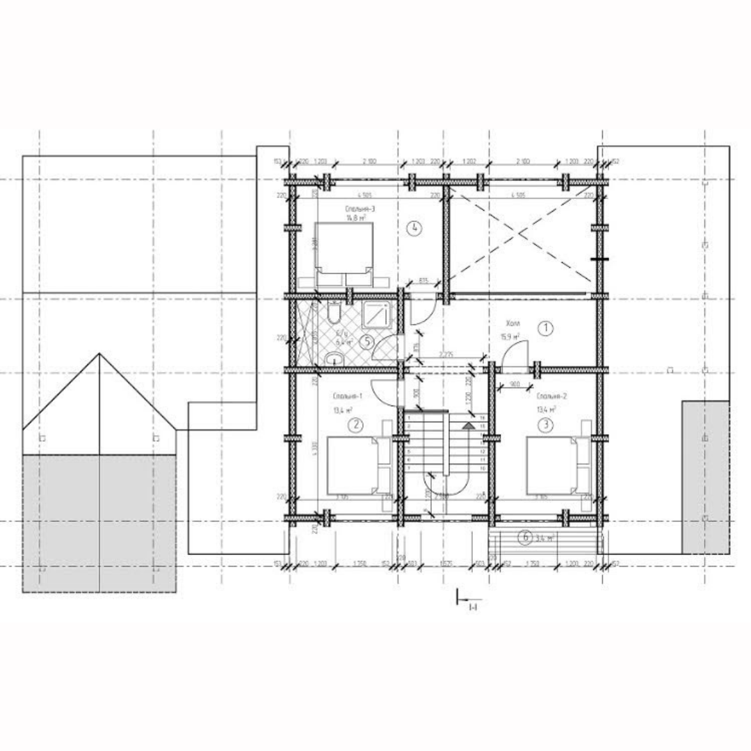
На мансардном этаже расположены:

  • три спальни площадью по 13 кв.м.,
  • просторный санузел площадью 6,4 кв.м.
  • холл -16 кв.м.,
  • балкон - 3,4 кв.м.

А теперь давайте посмотрим, как выглядит реальный дом по проекту АДД-АР-253-На Василях

Это фото на этапе строительства:

Дом АДД-АР-253-На Василях

Для покраски дома заказчик выбрал красивый синий цвет.

Готовый дом по проекту АДД-АР-253-На ВасиляхГотовый дом по проекту АДД-АР-253-На ВасиляхГотовый дом по проекту АДД-АР-253-На Василях

Белоснежные перила и софиты подшива крыши отлично дополнили синий цвет фасада.

А вот что заказчик говорит о строительстве дома по Финской технологии.

А в этом видео мы заглянули внутрь дома АДД-АР-253-На Василях Владельцы дома применили очень необычный подход к дизайну интерьера. Дом получился очень красивым и комфортным, как снаружи, так и внутри.

Больше интересных проектов и реализаций смотрите в нашем Телеграм сайте. Там каждый день что-то интересное и полезное для тех, кто планирует строить дом.

ПОДПИСАТЬСЯ

#красивый дом #дом из бруса #строительство дома #блог строителя #альпийский дом

Больше интересных статей здесь: Стройка.

Источник статьи: Стильный дом со вторым светом площадью 253 м2. Дизайн-проект и фото готового дома.

Отзыв «Стильный дом со вторым светом площадью 253 м2. Дизайн-проект и фото готового дома»

?
19 + 9 = ?