Проект просторного, шикарного дома для большой семьи "Астория" с гаражом на 2 машины и 6 спальнями- 452 кв.м

Красивый, современный дом по проекту "Астория" станет прекрасным решением для размещения большой семьи.

Обратите внимание: Работа по договорам долевого участия в проектах с разрешением на строительство, полученным до 01.07.2018г..

В нем учтены все детали: прочные, теплые стены, приятная отделка фасада и продуманная планировка.

"Астория" — это архитектурный шедевр, который станет Вашим, если Вы обратитесь в компанию "Stone Wood House".

Площадь дома - 452 кв.м.
Габариты - 21.0 м x 20.0 м.

Ссылка на проект дома "Астория"

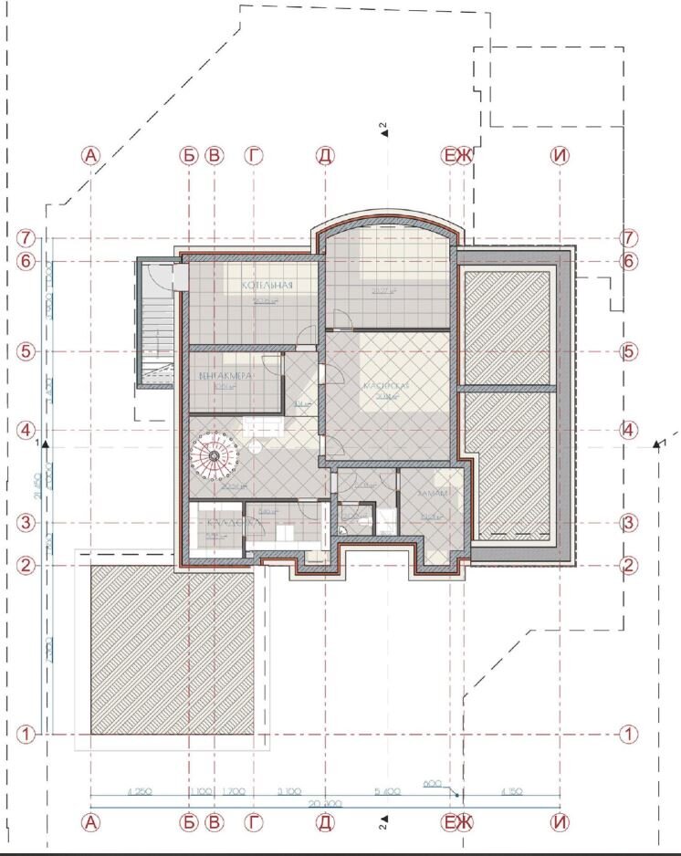
Планировка

Отличная новость!

При заключении договора на строительство дома в нашей компании, проект индивидуального дома идет вам в подарок.

Если Вы планируете построить дом по этому проекту, обращайтесь к специалистам нашей компании, мы проконсультируем, адаптируем под Ваши пожелания и земельный участок, построим Вам надежный дом и предложим гарантию 5 лет на свою работу.

👉 Приглашаем Вас посетить наши строящиеся дома, чтобы Вы могли вживую оценить профессионализм, компетентность и ответственность нашей компании.

Смотрите на нашем сайте другие проекты двухэтажных домов

_____

👉 Если Вам интересны другие проекты домов, приглашаем Вас на наш сайт, где Вы среди множества современных проектов домов, найдете подходящий именно Вам проект!

Что делать, если среди множества просмотренных вариантов, Вы так и не нашли подходящий проект дома?

👉 Решение есть - наши архитекторы всегда готовы создать проект для именно Вас! Это будет индивидуальный проект, предусматривающий все Ваши задумки и пожелания. Цена от этого не меняется, и зависит только от площади дома.

Подписывайтесь на наш канал, будем радовать Вас новыми интересными проектами.

Ждем Вас на нашей странице в Инстаграм ! Мы подготовили много всего интересного!

Будем благодарны за обратную связь!

_____

👉 По вопросам приобретения проекта дома и его доработок под потребности Заказчика и местность застройки обращайтесь:

  • по электронному адресу

Этот адрес электронной почты защищён от спам-ботов. У вас должен быть включен JavaScript для просмотра.

  • по телефону

8 (495) 532-80-87

8 (965) 199-61-04

  • сайт

https://stone-wood-house.ru

С Уважением,
строительно-проектная компания «Стоун Вуд Хаус»

#проект дома

#особняк

#проектирование

#строительство

#коттедж

#дом для большой семьи

#загородный дом

#строительство домов под ключ

#строим дом

#архитектор

Больше интересных статей здесь: Стройка.

Источник статьи: Проект просторного, шикарного дома для большой семьи "Астория" с гаражом на 2 машины и 6 спальнями- 452 кв.м.

Отзыв «Проект просторного, шикарного дома для большой семьи "Астория" с гаражом на 2 машины и 6 спальнями- 452 кв.м»

?
17 - 8 = ?