Проект компактного и уютного дома для небольшого участка - 105 кв.м

«Лукошко» - это небольшой, аккуратный дом, рассчитанный на большую и дружную семью. Отлично подойдет для строительства на небольшом участке, идеально впишется как в городской, так и в загородный ландшафт.

Даже снаружи этот дом манит уютом: черепица и облицовочный кирпич выбраны в теплых пастельных тонах, а крыльцо и балкон добавляют изысканности конструкции.

Площадь дома - 105 кв.м.
Габариты - 10.7 м x 12.6 м.

Ссылка на проект дома "Лукошко"

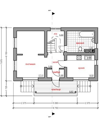
Планировки

Внутреннее пространство дома симметрично и точно вымерено. На первом этаже расположены кухня, просторная гостиная и ванная комната.

Обратите внимание: Работа по договорам долевого участия в проектах с разрешением на строительство, полученным до 01.07.2018г..

На мансардном этаже – четыре спальных комнаты, а выход на балкон – из холла.

Начните строительство дома уже этой весной. Наши специалисты подготовят для Вас индивидуальный проект дома, адаптируют его под Ваш земельный участок. После завершения строительства на все несущие и конструктивные элементы дома гарантия – 5 лет.
И еще отличная новость! При заключении договора на строительство дома в нашей компании, проект индивидуального дома идет вам в подарок.

👉 Приглашаем Вас посетить наши строящиеся дома, чтобы Вы могли вживую оценить профессионализм, компетентность и ответственность нашей компании.

Смотрите на нашем сайте другие проекты двухэтажный домов

Проекты домов площадью 90-150 кв.м.

👉 Если Вам интересны другие проекты домов, приглашаем Вас на наш сайт, где Вы среди множества современных проектов домов, найдете подходящий именно Вам проект!

Что делать, если среди множества просмотренных вариантов, Вы так и не нашли подходящий проект дома?

👉 Решение есть - наши архитекторы всегда готовы создать проект для именно Вас! Это будет индивидуальный проект, предусматривающий все Ваши задумки и пожелания. Цена от этого не меняется, и зависит только от площади дома.

Подписывайтесь на наш канал, будем радовать Вас новыми интересными проектами.

Будем благодарны за обратную связь!

_____

👉 По вопросам приобретения проекта дома и его доработок под потребности Заказчика и местность застройки обращайтесь:

  • по электронному адресу

Этот адрес электронной почты защищён от спам-ботов. У вас должен быть включен JavaScript для просмотра.

  • по телефону

8 (495) 532-80-87

8 924 335 35 74 (WhatsApp)

  • сайт

https://stone-wood-house.ru

С Уважением,
строительно-проектная компания «Стоун Вуд Хаус»

#строительство

#проектирование

#проектирование дома

#проект дома

#строительство дома

#компактный дом

#небольшой дом

#загородный дом

#коттедж

#дом в подмосковье

Больше интересных статей здесь: Стройка.

Источник статьи: Проект компактного и уютного дома для небольшого участка - 105 кв.м.

Отзыв «Проект компактного и уютного дома для небольшого участка - 105 кв.м»

?
13 + 14 = ?