Проект каменного дома, который станет лучшей альтернативой квартиры для семьи из 4-х человек

АКД-АР-94 — это проект одноэтажного кирпичного дома оптимального размера для семьи из 4-х человек. В доме 3 спальни, кухня -гостиная-столовая с выходом на просторную летнюю веранду, прихожая и 2 санузла. Проект этого дома продуманностью и размерами похож на квартиру, только вместо балкона здесь шикарная крытая веранда, предусмотрена шахта камина и нет шумных соседей. Этот дом можно рассматривать как альтернативу жилья в многоквартирном доме, но с массой преимуществ загородной жизни.

Дом имеет небольшую площадь — 106 м², но планировка сделана так, чтобы использовать максимально эффективно каждый сантиметр пространства.

В статье расскажем почему вам стоит рассмотреть этот проект как альтернативу квартиры.

Проект АКД-АР-94-Муранка от Альпийского дома

Оптимальная площадь дома

Небольшая площадь дома размером с комфортную современную 3-х комнатную городскую квартиру - 106 кв.м. Здесь только самые необходимые помещения — 3 спальни, кухня-гостиная, просторная прихожая и 2 санузла.

Проект АКД-АР-94-Муранка от Альпийского дома

Дом имеет универсальную планировку, которая подойдет любой среднестатистической семье. Это значит, что дом, при необходимости, будет легко продать в будущем.

Компактная площадь также позволяет легко разместить строение на участке любой площади.

Проект АКД-АР-94-Муранка от Альпийского домаПроект АКД-АР-94-Муранка от Альпийского дома

Дом одноэтажный

Планировка и одноэтажность дома похожа на квартиру и привычны для использования. Один этаж в доме — это удобство и безопасность передвижения, особенно если в доме живут пожилые люди и дети.

Стоимость строительства одноэтажного дома будет значительно дешевле, чем за дом в два этажа за счет экономии площади лестницы стоимости самой лестницы.

При этом одноэтажный дом строится гораздо быстрее, чем дом в два этажа.

Обратите внимание: Работа по договорам долевого участия в проектах с разрешением на строительство, полученным до 01.07.2018г..

Для семьи которая планирует такой дом как основное жилье этот фактор становится особенно важным, тем более что скорость строительства значительно влияет на стоимость дома, поскольку цены на стройматериалы сегодня слабо предсказуемы и постоянно растут.

Проект АКД-АР-94-Муранка от Альпийского дома

Вот что говорит об этом проекте сам заказчик.

Посмотреть проект на сайте

Удобная и понятная планировка

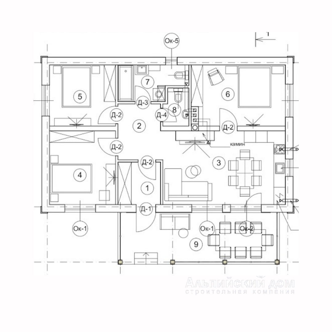
Главный принцип планировки этого дома - максимально эргономичное использование небольшого пространства. Комфортный семейный одноэтажный дом из керакама с просторной верандой, общей площадью 106 кв.м. и 127,4 с учетом веранды.

Давайте посмотрим его планировку

АКД-АР-94-Муранка — максимально эргономичное использование небольшого пространства.
  • Небольшая прихожая площадью 4,2 кв.м., в которой можно разместить шкаф для верхней одежды и обуви.
  • Просторная кухня-гостиная с камином площадью 24 кв.м.
  • Три спальни площадью 13 кв.м., 10 кв.м. и 15 кв.м.
  • Общий холл - 6,4 кв.м.
  • Два функциональных санузла 6 кв.м. и 2 кв.м.
  • Примыкающая к дому крытая веранда площадью 22,6 кв.м.

Посмотреть проект на сайте

Дом по проекту АКД-АР-94-Муранка
Мы уже построили дом по этому проекту для нашего заказчика. Сейчас мы производим чистовую отделку внутри и наружную отделку фасадов. Мы обязательно сделаем для вас обзор дома! Подписывайтесь на наш канал, чтобы не пропустить.

Рассчитать стоимость своего дома

#Дом из камня #строительство дома #строительная компания #проект дома #строители #дом вместо квартиры

Больше интересных статей здесь: Стройка.

Источник статьи: Проект каменного дома, который станет лучшей альтернативой квартиры для семьи из 4-х человек.

Отзыв «Проект каменного дома, который станет лучшей альтернативой квартиры для семьи из 4-х человек»

?
12 - 3 = ?