Красивый классический дом с 4 спальнями - 200 кв.м

Красивый, современный дом по проекту "Олимпия" станет прекрасным решением для размещения большой семьи.

Обратите внимание: Красивый забор своими руками.

В нем учтены все детали: прочные, теплые стены, приятная отделка фасада и продуманная планировка.

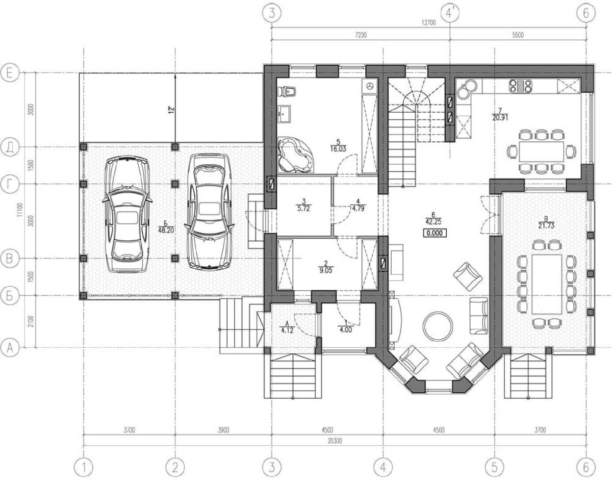
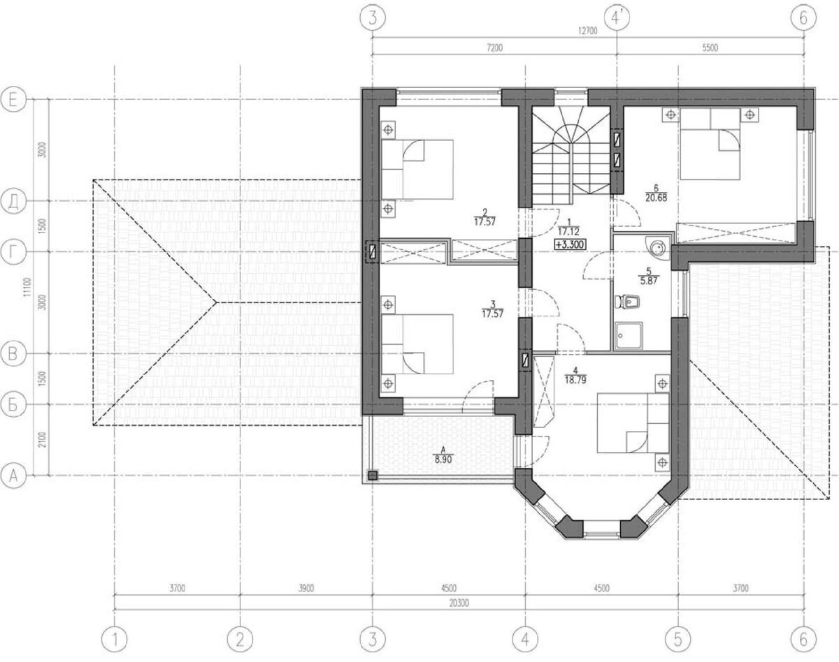
По сложившейся традиции приватная зона находится на 2 этаже, а первый этаж может полностью служить для приема гостей, отдыха, развлечений для детей и любых Ваших идей.

Площадь дома - 200 кв.м.
Габариты - 11.0 м x 13.0 м.

Ссылка на проект дома "Олимпия"

Планировка

Смотрите на нашем сайте другие проекты двухэтажных домов.

Отличная новость!

При заключении договора на строительство дома в нашей компании, проект индивидуального дома идет вам в подарок.

Наша компания выполняет комплексные услуги и может произвести все виды работ в рамках одного договора, которые будет включать — геологические исследования участка, проектирование, строительство, инженерные и отделочные работы.
Строительство домов и коттеджей в Московской области осуществляются опытными бригадами.
Для строительства дома мы разрабатываем проект или Вы предоставляете свой.
В проектировании участвует группа специалистов проектировщиков с допуском СРО. Строительство ведут наши лучшие инженеры и технический надзор.

👉 Если Вам интересны другие проекты домов, приглашаем Вас на наш сайт, где Вы среди множества современных проектов домов, найдете подходящий именно Вам проект!

Что делать, если среди множества просмотренных вариантов, Вы так и не нашли подходящий проект дома?

👉 Решение есть - наши архитекторы всегда готовы создать проект для именно Вас! Это будет индивидуальный проект, предусматривающий все Ваши задумки и пожелания. Цена от этого не меняется, и зависит только от площади дома.

Подписывайтесь на наш канал, будем радовать Вас новыми интересными проектами.

Будем благодарны за обратную связь!

_____

👉 По вопросам приобретения проекта дома и его доработок под потребности Заказчика и местность застройки обращайтесь:

  • по электронному адресу

Этот адрес электронной почты защищён от спам-ботов. У вас должен быть включен JavaScript для просмотра.

  • по телефону

8 (495) 532-80-87

8 924 335 35 74 (WhatsApp)

  • сайт

https://stone-wood-house.ru

С Уважением, строительно-проектная компания «Стоун Вуд Хаус»

#проект дома

#строительство

#классический дом

#дом в классическом стиле

#дом для большой семьи

#загородный дом

#коттедж

#строим дом

#ремонт

#индивидуальное проектирование

Больше интересных статей здесь: Стройка.

Источник статьи: Красивый классический дом с 4 спальнями - 200 кв.м.

Отзыв «Красивый классический дом с 4 спальнями - 200 кв.м»

?
9 - 8 = ?