Как построить метро в историческом центре? Строительство метрополитена на мелком заложении. а как у них?

В последнее время на просторах московских информационных ресурсов и районных сообществ в социальных сетях все чаще звучат мнения о том, что метро в Москве строится т.н. "варварским методом", подразумевая под этими громогласными заявлениями строительство новых станций метро открытым способом (в котлованах) в условиях сложившейся плотной городской жилой застройки. При этом эти заявления подкрепляются утверждениями, что таким якобы "варварским" способом метро строится исключительно в Москве и исключительно командой действующих властей.

Самый большой негатив при строительстве метро на мелком заложении обрушился на строителей и проектировщиков в районе Академический - местные жители буквально "живым щитом" препятствуют строительству участка Троицкой линии метро от «Новаторской» до «ЗиЛа». Причем причины самые разные - от боязни, что при строительстве станций метро и проходке тоннелей на мелком заложении дома провалятся под землю до мнений о том, что недопустимо уничтожать городскую растительность, даже если по окончании работ вырубки будут компенсированы.

Для строительства притоннельного сооружения (вентиляционного киоска) вырублено несколько деревьев на бульваре вдоль ул. Дмитрия Ульянова.

Строительство станции метро «Вавиловская» (проектное название «Улица Строителей») на Ленинском проспекте.

Большое сопротивление от населения столичные власти встретили и в районе Нагатинский Затон. Здесь для строительства станции «Кленовый бульвар» с оборотными тупиками и пунктом технического осмотра подвижного состава Восточного участка Большой Кольцевой линии вдоль жилых домов понадобилось вырыть котлован протяжённостью аж 650-метров.

Основные опасения местных жителей - обводненные грунты, в условиях которых, по их мнению, строить объекты метрополитена в открытом котловане нельзя - это приведет к подвижкам грунта и, как следствие, создает угрозу для окружающей застройки.

Еще на одном объекте - улице Демьяна Бедного (строительство станции «Проспект Маршала Жукова» Рублёво-Архангельской линии). Недовольства вызывают перекрытые на время строительства локальные дороги и возникшие временные неудобства из-за перекладки коммуникаций.

Во всех приведенных выше случаях оппоненты строительства метро открытым, более дешевым способом, утверждают, что строить метро в больших городах в условиях плотной застройки нужно исключительно закрытым способом - на глубоком заложении.

Насколько все эти заявления о недопустимости строительства на мелком заложении соответствуют действительности? Попробуем разобраться на примере современного строительства метро в историческом центре Милана.

Отправляемся в гостеприимную Италию - переносимся на север страны. Поговорим о строительстве станций в стеснённых условиях и о культуре строительства в целом. Отметим технологии, которые могли бы перенять наши метростроевцы для реализации проектов центральных участков линий в Москве.

Структурно поделим наше повествование на четыре части: сначала расскажем о проекте линии в общем, затем рассмотрим три станции в деталях (строительство каждой из них чем-то по-своему примечательно).

Линия М4: о проекте глобально.

Линия протянется с запада на восток, связав окраины города с центром. Западной конечной станет «San Cristoforo», где можно будет пересесть на одноименную станцию железной дороги. На востоке линия дойдёт до аэропорта Linate (станция «Linate Aeroporto»).

Пассажиры линии смогут пересесть на три из четырёх существующих линий: М1 — на станции «San Babila», M2 — на станции «S. Ambrogio» и на M3 — на станции «Sforza Policlinico».

Линия на карте города.

Для обслуживания линии будет построено одно депо — за станцией «San Cristoforo». Будут эксплуатироваться беспилотные поезда.

Теперь расскажем, как будет строиться сама линия. Тоннели (за исключением станций, монтажных/демонтажных камер и рампового участка около депо) строятся закрытым способом с применением щитовой проходки. Иронично, но «миланский» метод, применявшийся повсеместно при строительстве линии М1, на строительстве линии М4 будет применяться с куда меньшим размахом — только при строительстве станций.

При строительстве применялись ТПМК разного диаметра: 9.15 метров для проходки центрального участка «Coni Zugna» — «Tricolore» и 6.36 для проходки остальных участков. Это сделано для упрощения строительства станций в центре: в тоннеле большего диаметра можно разместить платформу.

Поперечный разрез «окраинной» станции. Стрелками обозначены границы платформы.Поперечный разрез «центральной» станции

Здесь мы приходим к первой примечательной технологии: центральный зал, блок служебных помещений и наклонный ход строить открытым способом, а потом раскрывать ходки в боковые тоннели, пройденные ТМПК. Тоннель большего диаметра позволяет обойтись без строительства притоннельных сооружений: как это делается при строительстве двухпутных тоннелей в Москве. Да, проходка щитом диаметром 9 метров однопутного тоннеля — удовольствие не из дешёвых, но такая мера оправдана при строительстве в плотной городской застройке. Тут стоит отметить, что из общей стоимости проекта 1.8 млрд евро 461 миллион (или около четверти) — вложения инвесторов. Это фирмы Hitachi Rail STS, Astaldi, Webuild, ATM и Sirti. Видится, решение о проходке щитом увеличенного диаметра ещё было и финансово оправдано.

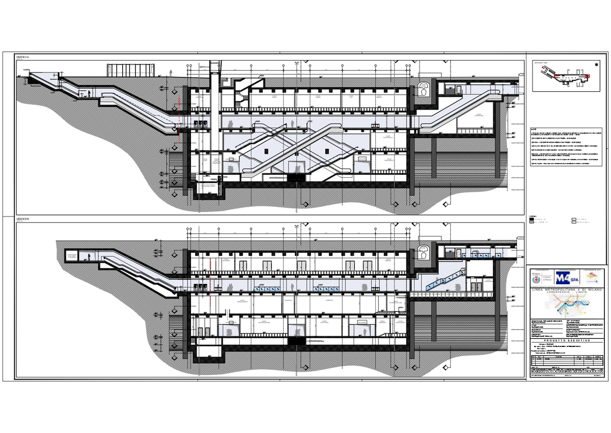
Станция Tricolore: на границе участков.

Раз уж зашла речь о разных диаметрах тоннелей, то логично рассказать об одной из «граничных» станций. Кроме того, стройплощадка размещается в весьма стеснённых условиях. Сначала посмотрим схемы:

Схема стройплощадкиПлан наземных сооруженийПоперечные разрезы по двум осямПлан этажа подземного вестибюляПоперечные разрезы по разным осям

Таким образом, станция будет иметь один вестибюль с двумя выходами на поверхность — по одному на каждую сторону площади. Уровень вестибюля с платформой будут связывать два двухниточных эскалатора и лестница. Платформа — островная.

Примечателен подход к информационному освещению строительства. Все подробные схемы будущих станций есть на сайте линии, чтобы их найти не надо шерстить тендеры или хостинги проектных организаций. Там же доступна актуальная информация о схеме проезда около стройплощадок. О каждом этапе строительства публикуется уведомление, ниже приведена выдержка из уведомления о начале работ по стене в грунте.

Возведение стен в грунте на строительной площадке станции «Триколор» начнется в среду, 26 апреля. Этот процесс требует перемещения «громоздких материалов» (прямая цитата, далее пояснений не следует), для чего необходимы кратковременные перерывы в движении на соответствующем участке Корсо Конкордия, а также для обеспечения безопасности людей и транспортных средств, проезжающих поблизости.
<…>
Короткие перерывы продолжительностью несколько минут будут происходить примерно 6 раз в день - с понедельника по субботу с 8:00 до 10:00 и с 14:00 до 16:00 - с 26 апреля по 9 мая на стороне Корсо Конкордия между площадью Рисорджименто и виа Крамер, а затем, до второй недели июня, на стороне между площадью Триколоре и виа Гвиччардини. Строители и полиция будут работать сообща для регулирования дорожного движения, проезда транспортных средств и общественного транспорта, регулирования перерывов для выполнения операций с максимальной безопасностью и с минимальными неудобствами.
Строительство стен в грунте может создавать шум, создаваемый грейфером, его системами (насосами и двигателями), трением, возникающим при работе, и вибрациями, вызванными действием стальных ковшей при выемке грунта, а также выемкой металлических разделителей, разграничивающих каждую захватку СВГ.
Эти работы строителям будет разрешено проводить с 5:00 до 00:00.

Перейдем к обзору главных вех строительства. С 2015 года вёлся вынос коммуникаций на прилегающих улицах. В мае 2017 началось сооружение стены в грунте.

Первые работы по СВГ. Начало мая 2017.

И за счёт небольших (по московским меркам) объёмов работ уже спустя три месяца было начато раскрытие котлована.

Начало раскрытия котлована. Август 2017.

Меньше, чем через год в котлован станции финишировал ТПМК «Stefania», пришедший со стороны станции «Dateo». Он прошёл более 5 километров, установив порядка 3500 колец тоннельной обделки.

Финиш первого ТПМК. 14 марта 2018.

Вскоре финишировал и второй щит. Напомним, что эти два ТПМК имели внешний диаметр 6.36 метров, что соизмеримо с щитами, применяемыми в Москве при строительстве однопутных тоннелей.

Оба ТПМК финишировали.

В декабре того же года был дан старт первому из «больших» ТПМК. Ему предстояло пройти транзитом 6 станций центрального участка и финишировать у станции «Coni Zugna». Внешний диаметр щитов равнялся 9.15 метрам. В пресс-релизе написано, что такое решение мотивировано именно возможностью разместить в тоннеле платформы и минимизировать тем самым площади стройплощадок в центре города.

Летом 2020 года в газете La Repubblica вышел объёмный репортаж о проходческих работах в период Ковида.

Обратите внимание: Работа по договорам долевого участия в проектах с разрешением на строительство, полученным до 01.07.2018г..

Проходка останавливалась на пару недель, но потом работы продолжились.

Тоннелепроходка изнутри. 29 июля 2020.

Полный репортаж (29 фото) рекомендуется к просмотру: https://milano.repubblica.it/cronaca/2020/07/29/foto/m4_cantiere_talpa-263105810/1/. Из интересного — по тоннелям рабочих до места работы подвозят на автомобилях. На паре кадров запечатлён котлован станции. Как видно, более чем за год в нём не произошло разительных изменений — он целиком используется для обслуживания проходки.

Буквально на днях был демонтирован башенный кран, который использовался при обслуживании проходок и строительстве станций. Ниже уведомление от 2 февраля:

Чтобы обеспечить демонтаж крана на строительной площадке станции Триколоре, в субботу, 5 февраля, с 7 до 19, движение в направлении центра будет временно остановлено на участке Корсо Конкордия между площадью Рисорджименто и площадью Триколоре. В это время автобусы 54 и 61, в направлении центра города, будут следовать по следующему маршруту от остановки Piazza Risorgimento: через C. Pisacane, piazza Fratelli Bandiera, через Bellotti, Via De Bernardi, viale Majno и corso Монфорте, здесь они вернутся на свои прежние трассы. Доступ для жителей и машин скорой помощи всегда будет гарантирован благодаря слаженной работе строителей и местной полиции. По окончании демонтажных работ дорожное движение будет восстановлено.

Открытие станции с пассажирами планируется в рамках участка «Dateo» — «San Babila» в начале 2023 года.

Что мы могли бы перенять из описанного выше? Наверное, более открытую информационную политику официальных страниц и более чуткий и вдумчивый подход к информированию местных жителей.

Строительство станции, октябрь 2021.

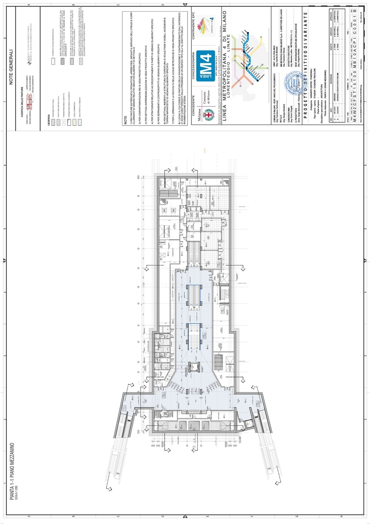
San Babila — «центральная» станция с пересадкой.

Следующая станция — «San Babila». Здесь можно будет пересесть на линию М1, старейшую в городе. Посмотрим на схемы:

План уровня поверхности после завершения строительстваПлан уровня подземного вестибюляПродольный разрез по двум осямПоперечные разрезы по нескольким осям

Как можно заметить, станция будет иметь подземный вестибюль, который будет связывать платформу с поверхностью и пересадкой. Неочевидно, но на схемах №2 и №3 коридор, уходящий вправо за границы схемы, и будет коридором пересадки. Также примечательно, что центральный зал будет соединяться с каждым из боковых тоннелей тремя ходками большого диаметра.

Первый этап строительства стены в грунте был начат конце ноября 2016 года.

План пересадки. Справа — северный торец котлована M4. На схемах выше он также расположен справа.

Обратите внимание, все сооружается открытым способом.

Раскрытие котлована центрального зала. 28 февраля 2019.

К осени была раскрыта южная часть котлована. Тут разместился выход на поверхность.

27 сентября 2019.

В январе 2020 была завершена выемка грунта в центральной части, начато закрепление грунтов в местах планируемого раскрытия ходков.

Котлован центрального зала. Январь 2020.

Для наглядности - вид со спутника.

Март 2020.

Сейчас на станции завершаются монолитные работы.

Осень 2021.

Открытие станции планируется в начале следующего года.

Пример этой станции показывает, что можно строить станции на небольших площадях и вплотную к зданиям. Да, приходится полностью перекрыть движение автомобилей и ограничить движение пешеходов. Это непопулярные, но необходимые меры: лучше испытывать неудобства несколько лет, но после иметь станцию именно там, где она действительно нужна.

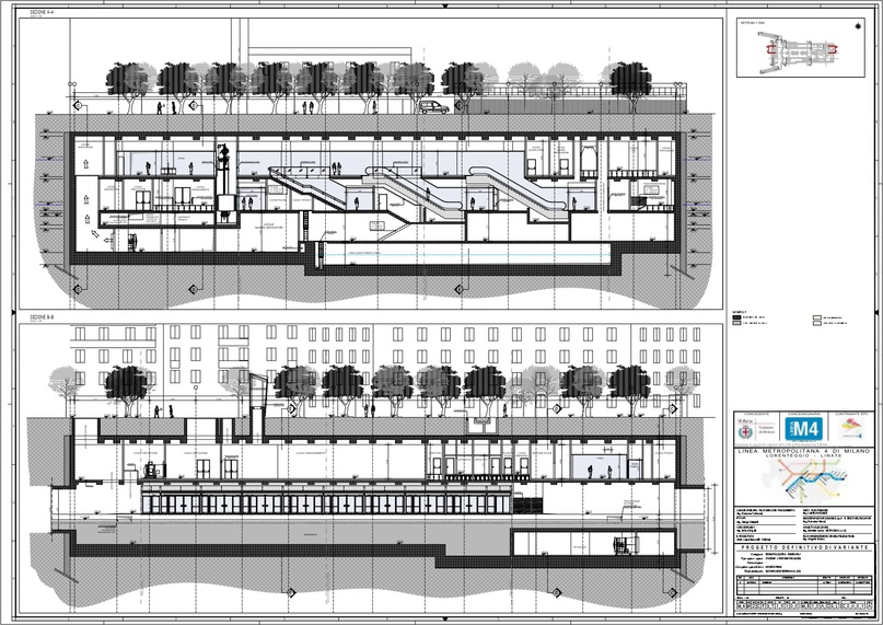
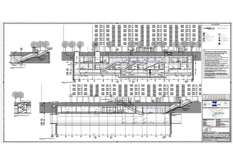
Станция Tolstoj — «окраинная» станция на узкой улице.

Перейдём к третьей станции. Фотографии из анонсов как раз с этой стройплощадки.

Уровень поверхности.Уровни вестибюля и платформы.Продольные разрезы по двум осям.Поперечные разрезы.

Станция расположится под улицей Via Lorenteggio, будет иметь подземный вестибюль и выходы на обе стороны улицы. Вестибюль с платформой свяжут два двухниточных эскалатора и лестница. В общем, конфигурация очень похожа на станцию «Tricolore». Примечательно, что в самом узком месте ширина улицы составляет чуть меньше 30 метров.

Раскрытие котлована было начато в январе 2018 года.

Январь 2018.Ноябрь 2018.Декабрь 2018. 31 января 2019.11 марта 2019. Один из ТПМК вышел в конструктив станции.

За весну 2019 произошёл большой скачок по готовности монолита. Судите сами:

Начало мая 2019.

К осени основные монолитные работы были завершены, проводилась гидроизоляция верхнего перекрытия.

Сентябрь 2019.

Репортаж изнутри от 8 сентября 2021 года. Начинается отделка, основные монолитные работы завершены.

Октябрь 2019. Начата обратная засыпка.

Открытие станции планируется в составе участка «San Babila» — «San Cristoforo» в октябре следующего года.

Из интересных решений можно отметить вынесенные на подобие эстакад проезды. Таким образом, можно не перекрывать улицу целиком, оставляя по одной полосе для проезда автомобилей. Вместе с использованием башенного крана такое решение позволяет вместить котлован на совсем маленькую улицу, обойдясь без внутриплощадочных проездов вдоль котлована.

Заключение.

Как мы выяснили выше, вполне возможно строить станции на стесненных городской застройкой стройплощадках, по ширине не сильно превышающих ширину котлована. Современные технологи строительства позволяют выполнять работы открытым способом вблизи жилых домов без влияния на капитальные строения. А вот с информированием населения нашему Стройкомплексу до итальянских коллег далеко - уровень работы с местными жителями нужно подтягивать. Ведь зачастую именно из-за недостатка информации, различных "недомолвок" вполне оправданно и закрадываются сомнения у людей, чьи дома оказались в зоне влияния проводимых работ.

Также можно применять комбинированный метод: строить центральный зал и блок служебных помещений открытым способом, а тоннели проходить щитами транзитом. И тут необходимо отметить, что все эти решения по зубам российским метростроителям, и могли бы применяться при строительстве и станций центральных участков линий.

Уверены, что тормозом строительства центрального участка Калининско-Солнцевской, Троицко-Некрасовской и Рублёво-Бирюлёвской линий являются не технологии, а цели и приоритеты мэрии и стройкомплекса. Пока приоритетом ставится количество станций и километры тоннелей, то будут строиться радиальные линии без центральных участков и с сомнительными трассировками, метро в полях, а пересадки и вторые (зачастую, более нужные) выходы будут неспешно достраиваться несколько лет после открытия станции. Стоит понимать, что рано или поздно проекты радиальных линий без центральных участков закончатся, и станет очевидной необходимость строительства метро в центре: центральные участки для соединения линий, которые заканчиваются до центра и, тем самым, оказываются «подвешенными» на другие линии, перенагружая их центральные участки. Ровно как и появятся ресурсы на строительство «недостающих» пересадок в центре: «Полянка», «Суворовская» и так далее. Скорее всего, это произойдёт уже в тридцатых годах этого века. Надеюсь, что тогда (а возможно и раньше) наши проектировщики присмотрятся к зарубежному опыту, проанализируют разные проекты и займутся проектированием центральных участков.

На сегодня всё. Спасибо за внимание!

Новости о развитии Московского метрополитена можно найти здесь: https://vk.com/razvitie_metro_msk Подписывайтесь на нас и в других социальных сетях (ссылки на главной странице профиля).

Статья написана по материалам сайтов metro4milano.it и www.skyscrapercity.com.

#метро #строительство метро #италия #милан #строительство

Больше интересных статей здесь: Стройка.

Источник статьи: Как построить метро в историческом центре? Строительство метрополитена на мелком заложении. а как у них?.

Отзыв «Как построить метро в историческом центре? Строительство метрополитена на мелком заложении. а как у них?»

?
19 - 19 = ?