Жизнь заставила. Отказываемся от комфортного дома и ищем планировку меньше

В комментариях часто пишут, что строить долгосрочные планы в такой обстановке не стоит. Вообще не поддерживаю подобное отношение к жизни, потому, как всегда, планирую на несколько лет вперед, но тут столкнулись с очевидной проблемой из-за чего решили все кардинально поменять.

Друзья, всем привет! Многие из моих читателей знают, что у нас есть участок в "новом" поселке, где мы планировали строить дом. Вся эта идея с новым строительством затевалась как возведение дома-мечты в хорошем месте с развитой инфраструктурой и что называется, на всю жизнь. Из-за чего при проектировании мы не шли на компромиссы и учли все недостатки нынешнего дома, такие как: второй этаж, один санузел, отсутствие инфраструктуры.

Так выглядит снаружи получившейся проект

Участок для нового строительства искали довольно долго и в нашей местности вариантов, подходящих под требования, очень мало. Тем не менее нашли неплохой клочок земли, но нуждавшийся в довольно больших физических и материальных затратах. Но это не пугало, потому как уже «бывалые». Купили. Прошлой осенью активно занимались подготовкой и планировкой. Был выполнен большой объём работы, а зимой самостоятельно спроектировали дом индивидуально под наши задачи и пожелания.

Таким образом учли различные системы хранения, кабинет, мастерскую, вход в которую осуществляется сразу из дома, террасу… в общем все что необходимо конкретно нам.

Весной заказали техническую разработку проекта, которую с большим запозданием, но сделали.

Обратите внимание: Есть ли жизнь за городом? Часть 2.

А дальше, думаю вы и сами знаете.

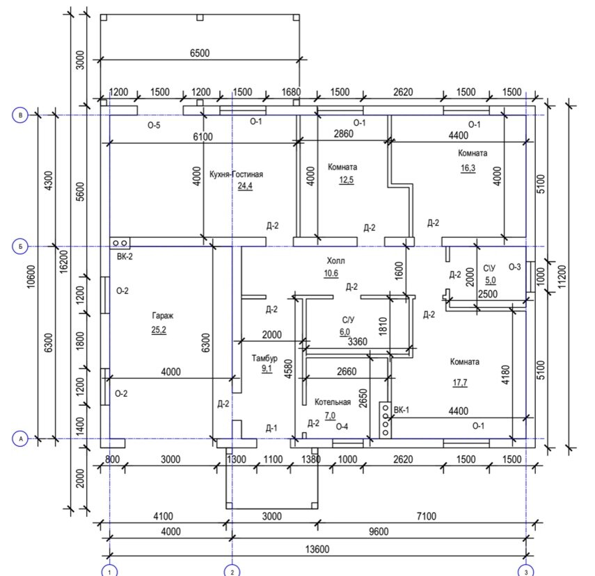
Такая планировка у нас получилась

Стоимость металлических изделий возросла в 3 раза, там, где хоть как-то применяется металл в 2 раза, пиломатериал также вырос в 2 раза, плитный древесный материал в 3 раза. Ну и особо жадные продавцы начали повышать цены на все что касается строительства, руководствуясь правилом: «почему кому-то можно, а мне нет».

В итоге стоимость строительства только фундамента за несколько месяцев выросла на 400 тысяч, а полностью дома на 1.5 миллиона.

Уже говорил, что на такие траты мы не готовы, поэтому взяли паузу и находимся в режиме ожидания, попутно выполняя какие-то мелкие работы формата организации подъезда на участок, подключения электричества, вынос границ, сбор документации.
Не так давно например, нам подключили электричество

Именно из-за вынужденно взятого перерыва в голове начали возникать мысли «а может зря мы замахнулись на такой большой дом?», а для нас дом в 136 квадратов, пусть и с мастерской, все равно большеват. Может не нужно было сразу делать мастерскую, а уже потом после переезда? В общем в голове начались настоящие баталии между здравым смыслом и желанием построиться быстро.

На этом фоне частенько разговаривали с супругой и продумывали различные варианты. И сейчас, как нам кажется, нужно уменьшать площадь, убирать мастерскую из основной коробки и строить небольшой, но все еще дом-мечты. Только благодаря этому удастся не замораживать деньги, а все также за несколько лет построиться и переехать, а уже после продать нынешний дом, раскидать какие-нибудь долги, которые обязательно возникнут и на остаток средств закончить с благоустройством.

Потихоньку начинаем посмотривать подобные проекты

Грустно, что приходиться отказываться от каких моментов, но других выходов не видим. Многие пишут, что строятся по 10-20 лет, но я к такому точно не готов. Жизнь одна и посвящать ее строительству в планах нет, из-за чего лучше пойдем на компромисс, но замораживать деньги в земле не будем.

Тут то как раз и пригодится второй участок, который мы сделали благодаря разделу. Скорее всего будем его продавать

На данный момент именно такой план является приоритетным, поэтому как бы не было обидно, делаем шаг назад и начинаем поиски проекта небольшого дома квадратов на 80 и последующую его доработку под наши потребности. Не люблю что-то делать по несколько раз, но придется. Мастерскую буду пристраивать уже после основного дома и скорее всего, самостоятельно по каркасной технологии. На самом конструктиве дома экономить не будем, скорее уменьшим по площади спальни, постараемся полностью избавиться от коридора, да и в целом все помещения станут меньше, но дом точно останется одноэтажным.

Вот такие не совсем приятные процедуры ждут нас впереди. На самом деле радует одно, что подорожание возникло не после заливки фундамента иначе долгострой был бы обеспечен. Ну а сейчас еще виден свет в конце туннеля, поэтому направляемся туда. Обидно, досадно, но не сдаёмся)

Больше интересных статей здесь: Стройка.

Источник статьи: Жизнь заставила. Отказываемся от комфортного дома и ищем планировку меньше.

Отзыв «Жизнь заставила. Отказываемся от комфортного дома и ищем планировку меньше»

?
2 + 19 = ?