Проект благородного коттеджа с неброским, изысканным декором - 229 кв.м

Невероятно эстетичный коттедж «Кофейный» станет уютным семейным гнездышком для большой гостеприимной семьи, стремящейся к размеренному отдыху и наслаждению преимуществами загородной жизни.

Столь притягательный внешний облик выдает в хозяевах коттеджа обладателей безупречного вкуса и чувства стиля. Эркер, балконы с металлическим ограждением, арки входной группы и лепнина украшают фасад, обшитый облицовочным кирпичом.

Габариты - 12.4 x 13.0 м.

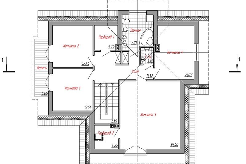
Планировка

Рациональность и удобство планировки создают оптимальные условия для комфортной жизни.

Обратите внимание: Работа по договорам долевого участия в проектах с разрешением на строительство, полученным до 01.07.2018г..

В доме предусмотрено шесть спален, три санузла, кухня-столовая и просторная гостиная.

Чтобы узнать стоимость проекта и строительства дома переходите по ссылке => проект «Кофейный». Оставляйте заявку или связывайтесь с нашими менеджерами.

Если Вы захотите что-то изменить, то это делается достаточно легко. Каждый проект делается под заказчика, учитывая все его пожелания.

Приглашаем Вас на наш сайт, где Вас ожидает более 500 современных архитектурных и планировочных решений. Смотрите подборку проектов двухэтажных домов.

Ждем Вас на нашей странице в Инстаграм и Телеграмм !

#проектдома #двухэтажныйдом #индивидуальноепроектирование #недвижимость #строительство #проектирование #архитектор #строимдом #коттедж #Загородноестроительство

Больше интересных статей здесь: Стройка.

Источник статьи: Проект благородного коттеджа с неброским, изысканным декором - 229 кв.м.

Отзыв «Проект благородного коттеджа с неброским, изысканным декором - 229 кв.м»

?
6 + 20 = ?