Из чего состоит Эскизный проект загородного дома? Для чего он нужен? Можно ли использовать типовой проект?

Реализация идеи строительства загородного дома происходит за 6 основных шагов:

1. Покупка земельного участка;

2. Разработка Эскизного проекта;

3. Геологические изыскания;

4. Разработка проекта на фундамент;

5. Строительно-монтажные и отделочные работы;

6. Ввод объекта в эксплуатацию.

В этой статье подробно обсудим второй шаг - разработку Эскизного проекта.

Что такое Эскизный проект? Это альбом с принципиальными решениями для объекта капитального строительства. На стадии ЭП разрабатываются планировочные, фасадные и цветовые решения для загородного дома.

Для чего нужен Эскизный проект:

1. С проектом на руках у Вас и у Вашего строителя есть конкретное понимание того, к чему нужно придти в результате строительства;

2. Только на основании проекта строители могут окончательно и честно рассчитать стоимость строительства объекта (есть спецификаций материалов и объемов работ);

3. Даже не имея строительной практики и специального образования с проектом Вы сможете осуществить хоть какой-то контроль над подрядчиком;

4. Проект сэкономит Ваши деньги, потому что хороший архитектор предложит оптимальные планировочные решения без лишних площадей и предусмотрит целесообразные решения по материалам и узлам;

5.

Интересное: Работа по договорам долевого участия в проектах с разрешением на строительство, полученным до 01.07.2018г..

Разработанный с соблюдением всех требований проект позволит Вам без проблем произвести ввод Вашего будущего дома в эксплуатацию.

Какой должен быть минимальный состав Эскизного проекта? Рассмотрим на примере проекта для одноэтажного дома, который мы разработали в 2021 году. Перед началом работы проектировщиков с Заказчиком согласовывается тип основных кладочных материалов (кирпич, твинблок или другое), материалы перекрытий, высоты этажей и так далее.

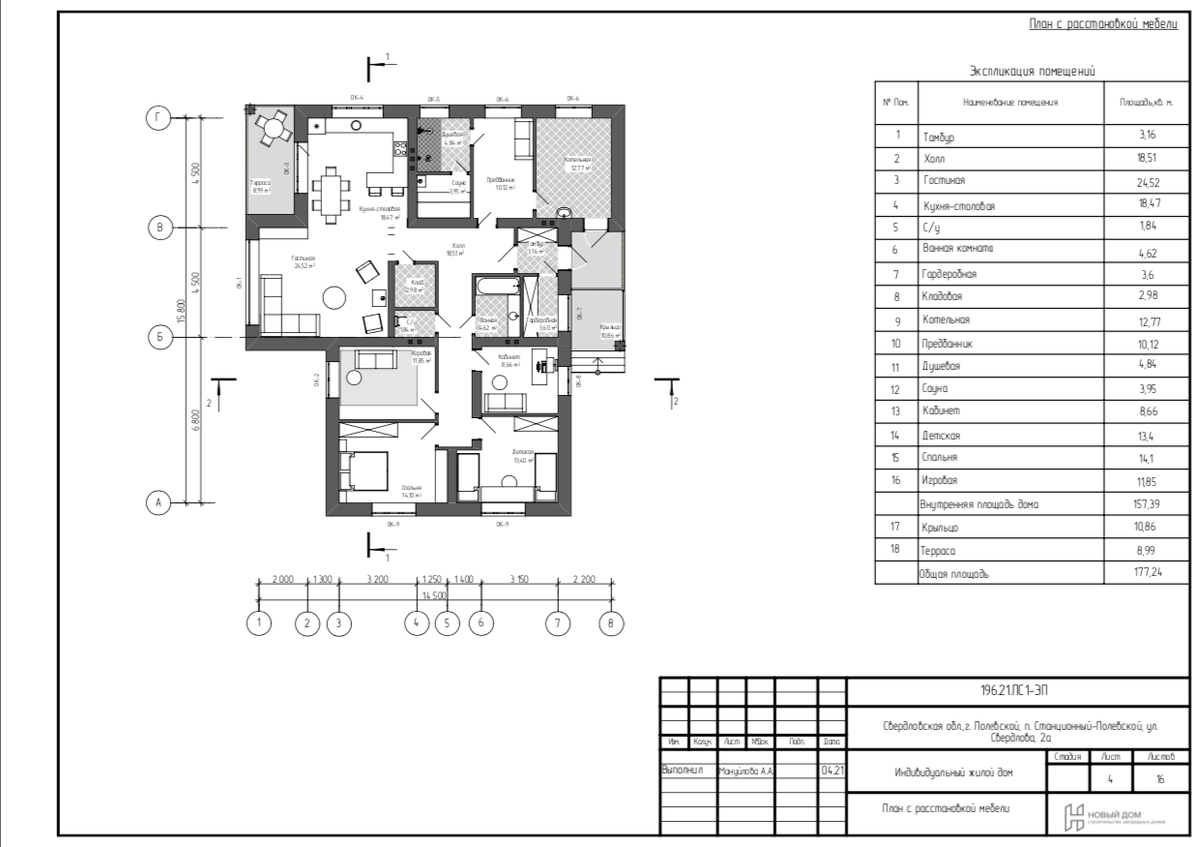
План первого этажа с расстановкой мебели

Начинается работа с формирования планировочных решений на основании требований заказчика, его образа жизни и исходя из количества людей, которые будут проживать в доме. Обычно при разработки планов так же выполняется предварительная расстановка мебели на чертеже.

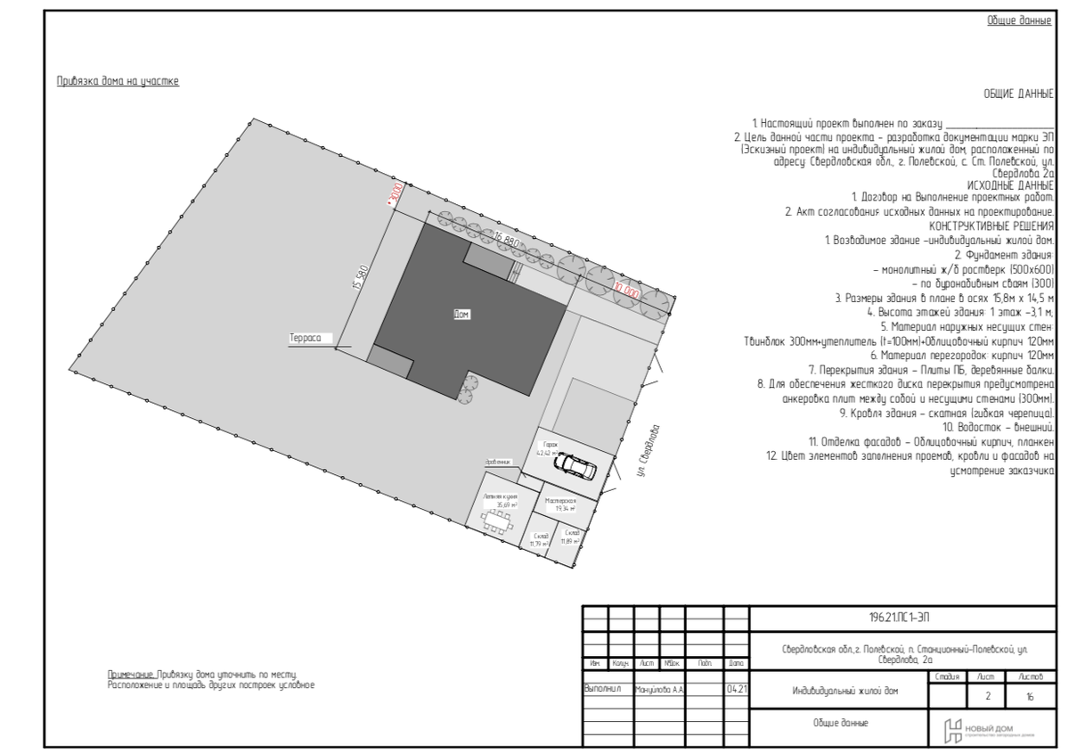
После разработки и согласования планировки с Заказчиком проектировщик выполняет привязку объекта на земельный участок в соответствии со всеми градостроительными нормами и правилами.

План привязки объекта с указанием общих данных

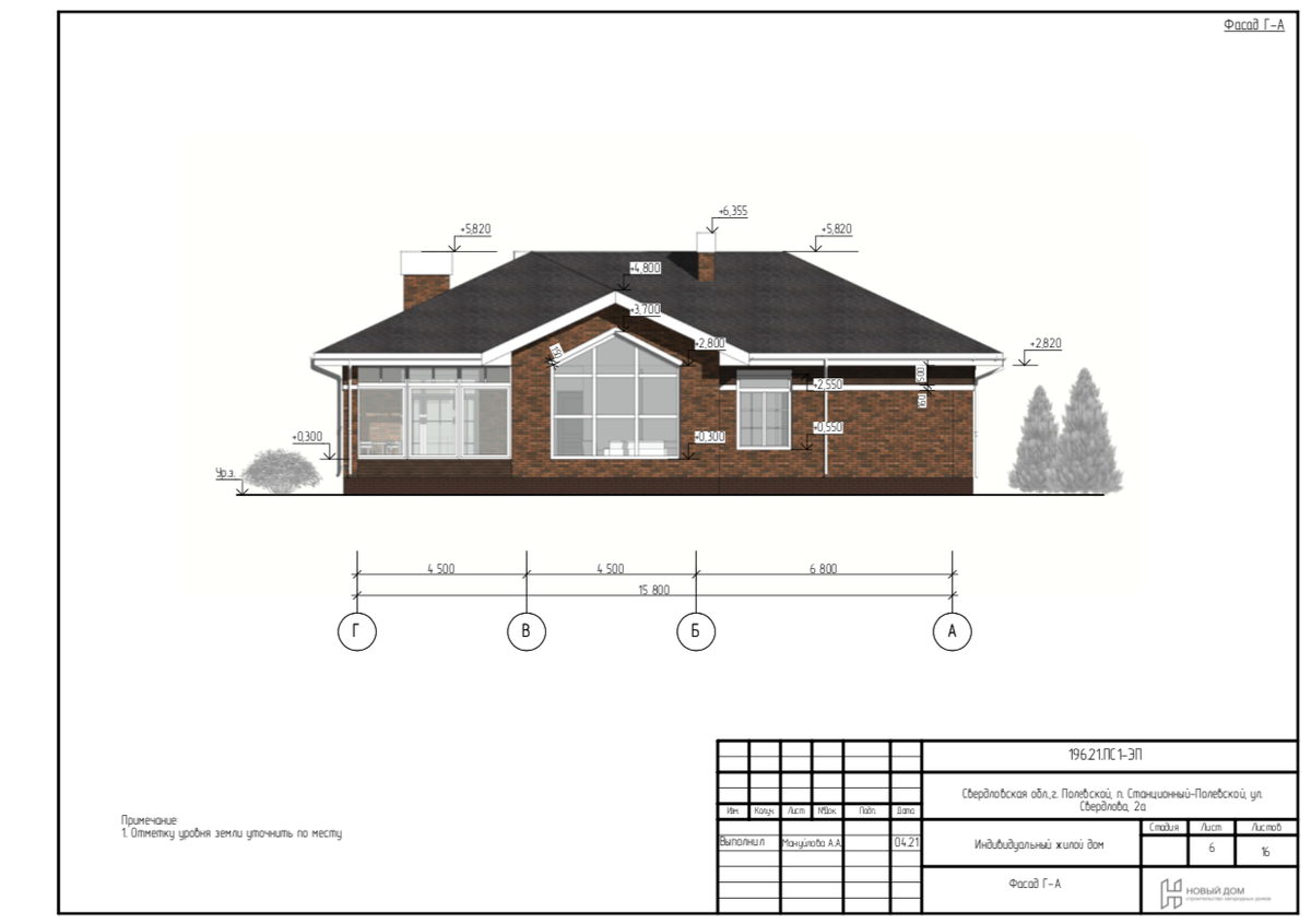
Следующий шаг - разработка внешнего вида, согласование с Заказчиком цветовых и отделочных решений фасадов. Обычно это несколько чертежей, объект показывается со всех сторон.

Чертеж с основным фасадом загородного дома

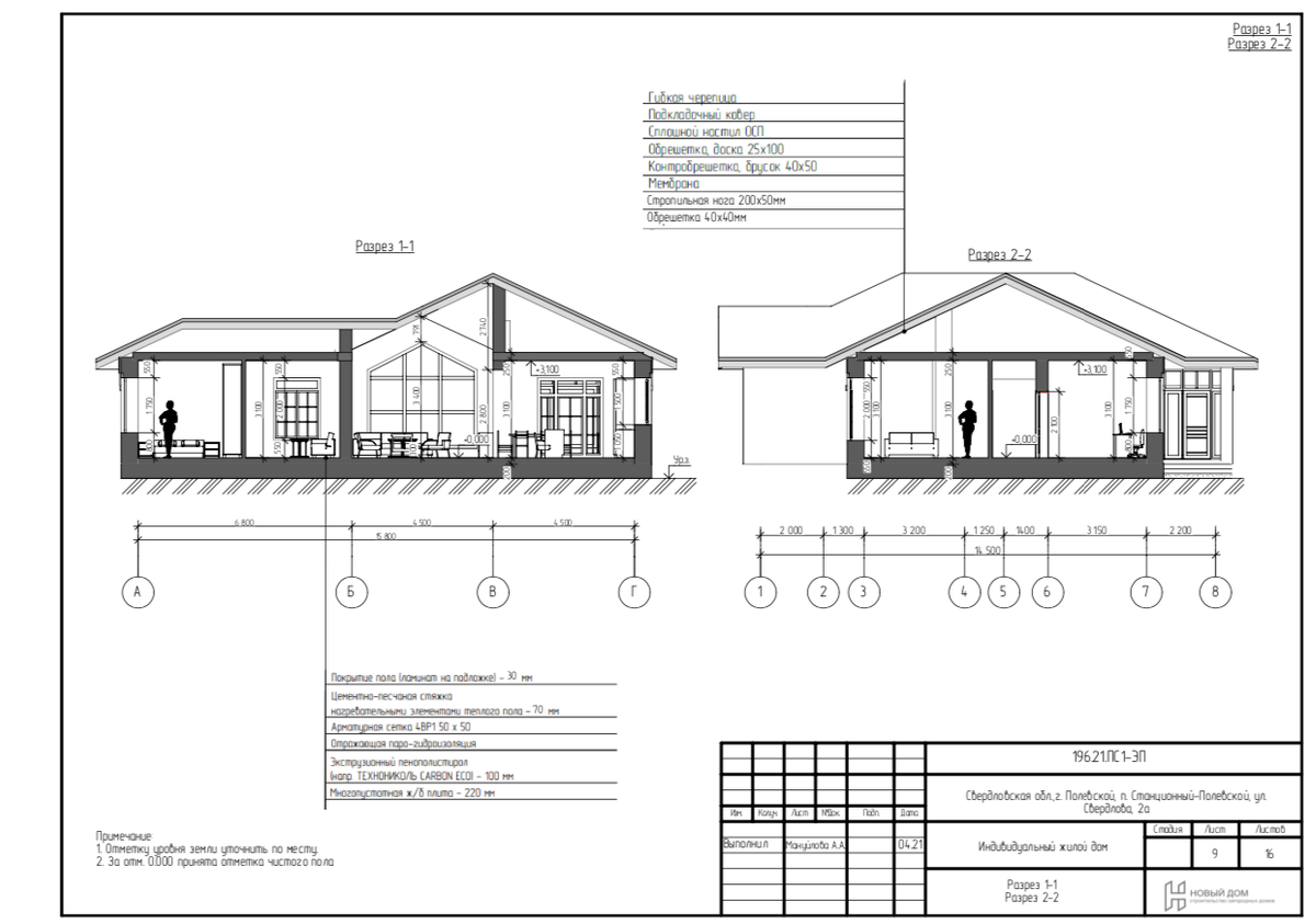
Так же альбом Эскизного проекта содержит несколько продольных разрезов объекта с указанием высотных отметок.

Разрезы 1 - 1 и 2 - 2 с указанием конструктивных слоев

На завершающем этапе проектирования разрабатываются 3D визуализации (видовые рендеры) загородного дома с нескольких сторон, формируются спецификации основных строительных материалов, ведомости заполнения оконных и дверных проемов.

Визуализация загородного дома

Обычно разработка индивидуального проекта занимает от одной до четырех недель, а стоимость начинается от 15 000 рублей.

Можно ли воспользоваться каким-либо типовым проектом или скачать проект из интернета? Тут есть ряд минусов:

  • Не факт, что проект идеально впишется на Ваш земельный участок. Очень важно правильно сориентировать планировку по сторонам света. Окна помещений с постоянным пробыванием людей не рекомендуется ориентировать на север (будет темно и угрюмо).
  • Проект из интернета разрабатывался без учета Ваших привычек и не отвечает всем Вашим требованиям. Индивидуальный проект - это всегда более удобная планировка. Кстати, в нашей компании есть практика адаптации готовых проектов под хотелки Заказчиков.
  • Обычно планировки из интернета имеют ряд архитектурных ошибок. Самые распространенные: слишком маленькая лестничная клетка, котельная с нарушением норм безопасности, слишком узкие коридоры.

Если Вам эта статья показалась полезной, то прошу Вас поставить "Лайк" или написать комментарий. Если с чем-то не согласны - тем более давайте обсудим. Если есть вопросы по проектированию или строительству, то переходите в наш Инстаграм и пишите в личные сообщения. За консультации денег не берем! https://instagram.com/noviy_dom_ekb​ - вот ссылка.

Интересное еще здесь: Стройка.

Из чего состоит Эскизный проект загородного дома? Для чего он нужен? Можно ли использовать типовой проект?.

Отзыв «Из чего состоит Эскизный проект загородного дома? Для чего он нужен? Можно ли использовать типовой проект?»

?
14 + 2 = ?